Zoek binnen het forum
Vraag: Bouwbesluit tbv woonark
Naam: Camiel, van Studio Du Saar (datum: 01-04-2020 17:33)
Hallo mede bouwkundigen,
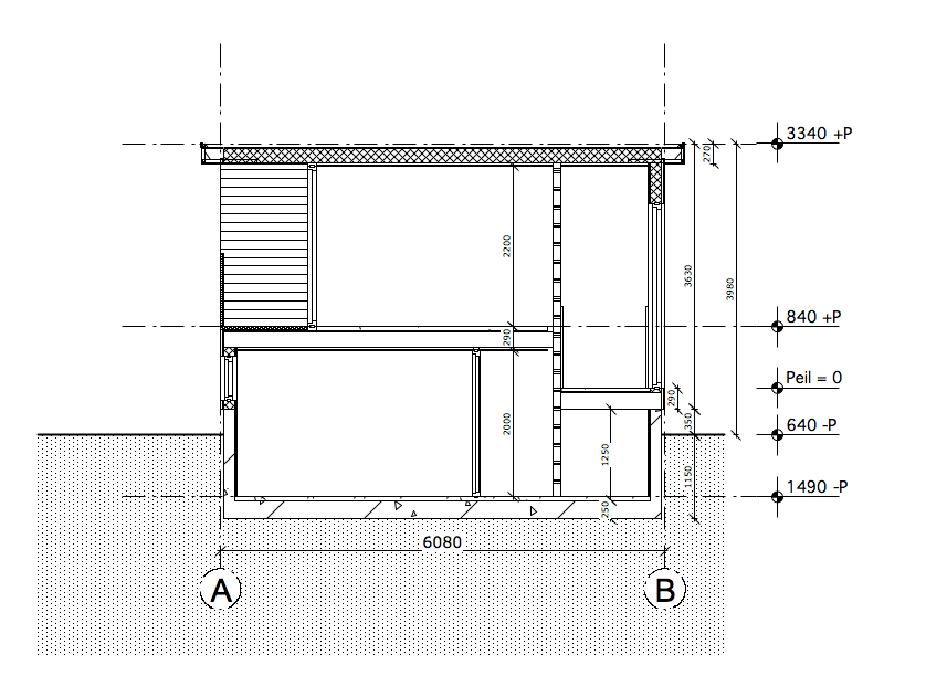
ik zit met het volgende. Een opdrachtgever van mij heeft een woonark laten bouwen en heeft nu een vergunning nodig (omgekeerde wereld, ik weet het). Nu ben ik aan het uitzoeken aan welke eisen een woonboot wel en niet hoeft te voldoen betreft het bouwbesluit. Ik vind hier dat een vluchtroute maar hoeft te voldoen aan bxh= 50x170cm.
Maar het gaat vaak mis bij de hoogte. Omdat veel gemeentes een vaste hoogte stellen, kom je nooit aan de hoogte vereist in het bouwbesluit (zie doorsnede). Dit wordt ook gemeld in het BBS, maar ik kan niet lezen, wat nu wel de eis is.
De vrije hoogte op bg is 220cm en op -1 is 200cm.
Zouden jullie mij kunnen helpen?
Ik hoor het graag.
Groet,
Camiel
Bijlage: Screen Shot 2020-04-01 at 17.41.20.jpg Reageer
Naam: Camiel, van Studio Du Saar (datum: 01-04-2020 17:33)
Hallo mede bouwkundigen,
ik zit met het volgende. Een opdrachtgever van mij heeft een woonark laten bouwen en heeft nu een vergunning nodig (omgekeerde wereld, ik weet het). Nu ben ik aan het uitzoeken aan welke eisen een woonboot wel en niet hoeft te voldoen betreft het bouwbesluit. Ik vind hier dat een vluchtroute maar hoeft te voldoen aan bxh= 50x170cm.
Maar het gaat vaak mis bij de hoogte. Omdat veel gemeentes een vaste hoogte stellen, kom je nooit aan de hoogte vereist in het bouwbesluit (zie doorsnede). Dit wordt ook gemeld in het BBS, maar ik kan niet lezen, wat nu wel de eis is.
De vrije hoogte op bg is 220cm en op -1 is 200cm.
Zouden jullie mij kunnen helpen?
Ik hoor het graag.
Groet,
Camiel
Bijlage: Screen Shot 2020-04-01 at 17.41.20.jpg Reageer
Re: Bouwbesluit tbv woonark
Naam: pino (datum: 01-04-2020 20:29)
Volgens mij is de vrije hoogte voor een nieuwe woonark niet anders dan voor een woning op de wal.
dus dat wordt slopen en aanpassen
Naam: pino (datum: 01-04-2020 20:29)
Volgens mij is de vrije hoogte voor een nieuwe woonark niet anders dan voor een woning op de wal.
dus dat wordt slopen en aanpassen
Re: Bouwbesluit tbv woonark
Naam: J. Bolte , van BJH Safety Services (datum: 01-04-2020 21:25)
Nee hoor, Camiel heef het goed nagezocht:
Voor een drijvend bouwwerk worden wel uitzonderingen gemaakt, die kun je lezen in art. 1.12b van het bouwbesluit. afdelingen 4.3 (badruimte), 4.5 (buitenberging) en 4.6 (buitenruimte) zijn sowieso uitgeschakeld, en 4.4 (Bereikbaarheid) ook als je geen toegankelijkheidssector hebt. En voor een paar andere leun je op de eisen voor bestaande bouw. En misschien bouw je die woonark ook wel voor een particulier waardoor je ook vanuit artikel 1.12a niet aan sommige eisen hoeft te voldoen.
Je hoogtebepaling voor verblijfsruimtes komt uit afdeling 4.1, en dat is zo'n afdeling waarbij je minimaal aan bestaande bouw zult moeten voldoen. Dus volgens art. 4.7 moeten je ruimtes minimaal 2.1 mtr. hoog zijn, en ten minste één verblijfsruimte moet 7,5 m2 groot zijn met een kleinste breedte van 2,4 meter.
Je verkeersruimtes vallen onder een andere afdeling, namelijk 4.4. En die is direct uitgeschakeld. Je hoeft in de verkeersruimtes en bij de doorgangen dus niet dezelfde hoogte te hanteren als in je ruimtes, en hebt ook geen minimale doorgang vanuit dat artikel.
Je enige andere eis voor doorgangsbreedte staat in art. 2.107 lid 8, maar daarvan geeft 1.12b ook aan dat je in de plaats van dat artikel 2.117 lid 4 moet gebruiken, dus ook weer naar de eisen van bestaande bouw moet kijken. Dan kom je op een minimale doorgang van 500 breed en 1700 hoog mag hebben.
Naam: J. Bolte , van BJH Safety Services (datum: 01-04-2020 21:25)
Nee hoor, Camiel heef het goed nagezocht:
Voor een drijvend bouwwerk worden wel uitzonderingen gemaakt, die kun je lezen in art. 1.12b van het bouwbesluit. afdelingen 4.3 (badruimte), 4.5 (buitenberging) en 4.6 (buitenruimte) zijn sowieso uitgeschakeld, en 4.4 (Bereikbaarheid) ook als je geen toegankelijkheidssector hebt. En voor een paar andere leun je op de eisen voor bestaande bouw. En misschien bouw je die woonark ook wel voor een particulier waardoor je ook vanuit artikel 1.12a niet aan sommige eisen hoeft te voldoen.
Je hoogtebepaling voor verblijfsruimtes komt uit afdeling 4.1, en dat is zo'n afdeling waarbij je minimaal aan bestaande bouw zult moeten voldoen. Dus volgens art. 4.7 moeten je ruimtes minimaal 2.1 mtr. hoog zijn, en ten minste één verblijfsruimte moet 7,5 m2 groot zijn met een kleinste breedte van 2,4 meter.
Je verkeersruimtes vallen onder een andere afdeling, namelijk 4.4. En die is direct uitgeschakeld. Je hoeft in de verkeersruimtes en bij de doorgangen dus niet dezelfde hoogte te hanteren als in je ruimtes, en hebt ook geen minimale doorgang vanuit dat artikel.
Je enige andere eis voor doorgangsbreedte staat in art. 2.107 lid 8, maar daarvan geeft 1.12b ook aan dat je in de plaats van dat artikel 2.117 lid 4 moet gebruiken, dus ook weer naar de eisen van bestaande bouw moet kijken. Dan kom je op een minimale doorgang van 500 breed en 1700 hoog mag hebben.
Re: Bouwbesluit tbv woonark
Naam: J. Bolte , van BJH Safety Services (datum: 01-04-2020 21:29)
Denk ik heel simpel wanneer ik zeg dat wanneer je de tussenvloer 100mm hoger legt, je op beide verdiepingen je minimale hoogte van 2100mm primahaalt?
Naam: J. Bolte , van BJH Safety Services (datum: 01-04-2020 21:29)
Denk ik heel simpel wanneer ik zeg dat wanneer je de tussenvloer 100mm hoger legt, je op beide verdiepingen je minimale hoogte van 2100mm primahaalt?
Re: Bouwbesluit tbv woonark
Naam: Camiel , van Studio Du Saar (datum: 01-04-2020 21:31)
J. Bolte,
ben jij plantoetser? ik ken niemand die de regelgeving zo paraat heeft als jij. Ik wist het wel, maar kon het niet hardmaken door de juiste gegevens te vinden.
Hartelijk dank, op 10cm hoogte na komen we dus uit. daar is wel iets op de verzinnen.
Fijn, ik kan verder!
Naam: Camiel , van Studio Du Saar (datum: 01-04-2020 21:31)
J. Bolte,
ben jij plantoetser? ik ken niemand die de regelgeving zo paraat heeft als jij. Ik wist het wel, maar kon het niet hardmaken door de juiste gegevens te vinden.
Hartelijk dank, op 10cm hoogte na komen we dus uit. daar is wel iets op de verzinnen.
Fijn, ik kan verder!
Re: Bouwbesluit tbv woonark
Naam: J. Bolte , van BJH Safety Services (datum: 02-04-2020 11:19)
@Camiel,
Yep, een hele tijd bouwkundig tekenaar geweest, en plantoetser, en handhaver gebruiksvergunningen, en WABO-coordinator,en ju privaat in de brandveiligheid aan de slag. Dan is het handig wanneer je de regels snel kunt oplepelen.
:)
Naam: J. Bolte , van BJH Safety Services (datum: 02-04-2020 11:19)
@Camiel,
Yep, een hele tijd bouwkundig tekenaar geweest, en plantoetser, en handhaver gebruiksvergunningen, en WABO-coordinator,en ju privaat in de brandveiligheid aan de slag. Dan is het handig wanneer je de regels snel kunt oplepelen.
:)
Re: Bouwbesluit tbv woonark
Naam: pino (datum: 02-04-2020 15:00)
weer wat geleerd.
laatst voor twee van die arken de constructie berekend die architect war er heilig van overtuigd dat de 2600 in het grootste deel gehaald moest worden
Naam: pino (datum: 02-04-2020 15:00)
weer wat geleerd.
laatst voor twee van die arken de constructie berekend die architect war er heilig van overtuigd dat de 2600 in het grootste deel gehaald moest worden
Re: Bouwbesluit tbv woonark
Naam: Camiel , van Studio Du Saar (datum: 02-04-2020 15:19)
Dank J. Bolte,
ik hou je bedrijf in mn achterhoofd voor eventueel grotere projecten!
Naam: Camiel , van Studio Du Saar (datum: 02-04-2020 15:19)
Dank J. Bolte,
ik hou je bedrijf in mn achterhoofd voor eventueel grotere projecten!
Re: Bouwbesluit tbv woonark
Naam: J. Bolte , van BJH Safety Services (datum: 02-04-2020 18:59)
@pino,
Als dat voor januari 2018 was, zou dat ook best wel eens kunnen kloppen. De regels voor drijvende bouwwerken zijn er toen bijgekomen, en van tevoren werd er heel hard door iedereen geroepen dat drijvende woningen aan dezelfde eisen als grondgebonden woningen moesten voldoen. Of werd er door sommige gemeenten op eigen initiatief de regels aangehouden voor woonwagens.
Reageer
Naam: J. Bolte , van BJH Safety Services (datum: 02-04-2020 18:59)
@pino,
Als dat voor januari 2018 was, zou dat ook best wel eens kunnen kloppen. De regels voor drijvende bouwwerken zijn er toen bijgekomen, en van tevoren werd er heel hard door iedereen geroepen dat drijvende woningen aan dezelfde eisen als grondgebonden woningen moesten voldoen. Of werd er door sommige gemeenten op eigen initiatief de regels aangehouden voor woonwagens.




![[ S&W Consultancy ]](topics//logo.gif)
![[ Emma Interieuradvies]](topics/index/emma.png)