Zoek binnen het forum
Vraag: Bouwen berging
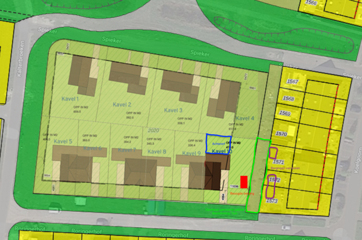
Naam: Arjan de Vreede (datum: 21-01-2020 12:03)
Wij hebben een nieuwbouwhuis gekocht (2 onder 1 kap) en willen aan de zijkant van ons huis een berging bouwen.
In de bijlage een omgevingssituatie, kavel 10 is de gekochte woning. Op de plek gemarkeerd met rood willen we graag een berging plaatsen (1 of 2m uit perceel grens). Blauw is volgens de gemeente ons achtererf. Groen is een stuk openbare gemeentegrond en, geen idee of het uitmaakt, met paars aangegeven dat de buren aan de zijkant ook bergingen hebben.
Het andere vreemde aan de situatie (gaat om bestemmingsplan Kalterbroeken 2017, is dat overal waar inmiddels een woning is gebouwd is de enkelbestemming "Wonen", overal waar er nog niet gebouwd is bestaat de bestemming uit twee delen: Woongebied en Tuin.
De gemeente zegt nu dat er uberhaupt niets gebouwd mag worden in bestemming Tuin.
Een andere optie zou de mogelijkheid zijn tot aankoop van het stukje groen ertussen, maar ik weet niet of de gemeente dat wil, volgens mij veranderd dan mijn wettelijk achtererf vanaf 1m achter de voorgevel over de gehele breedte van de kavel?
Heeft het zin om uberhaupt een vergunning aan te vragen of kan dit niet?
Bijlage: omgevingsvergunning-schets copy.jpg Reageer
Naam: Arjan de Vreede (datum: 21-01-2020 12:03)
Wij hebben een nieuwbouwhuis gekocht (2 onder 1 kap) en willen aan de zijkant van ons huis een berging bouwen.
In de bijlage een omgevingssituatie, kavel 10 is de gekochte woning. Op de plek gemarkeerd met rood willen we graag een berging plaatsen (1 of 2m uit perceel grens). Blauw is volgens de gemeente ons achtererf. Groen is een stuk openbare gemeentegrond en, geen idee of het uitmaakt, met paars aangegeven dat de buren aan de zijkant ook bergingen hebben.
Het andere vreemde aan de situatie (gaat om bestemmingsplan Kalterbroeken 2017, is dat overal waar inmiddels een woning is gebouwd is de enkelbestemming "Wonen", overal waar er nog niet gebouwd is bestaat de bestemming uit twee delen: Woongebied en Tuin.
De gemeente zegt nu dat er uberhaupt niets gebouwd mag worden in bestemming Tuin.
Een andere optie zou de mogelijkheid zijn tot aankoop van het stukje groen ertussen, maar ik weet niet of de gemeente dat wil, volgens mij veranderd dan mijn wettelijk achtererf vanaf 1m achter de voorgevel over de gehele breedte van de kavel?
Heeft het zin om uberhaupt een vergunning aan te vragen of kan dit niet?
Bijlage: omgevingsvergunning-schets copy.jpg Reageer
Re: Bouwen berging
Naam: Jack , van SenS (datum: 27-01-2020 15:05)
Het verschil lijkt te zijn dat er bij uw woning onderscheid wordt gemaakt in 'wonen' (specifiek bouwvlak) en 'tuin'. In het bestemmingsplan staat dan waarschijnlijk ergens dat op gronden met de bestemming 'tuin' niet gebouwd mag worden. U kunt de tekst van het bestemmingsplan er nog eens op napluizen en nagaan welke uitzondering er mogelijk zijn? Daarna een afspraak maken met de gemeente, uw plannen motiveren en evt. de opties en (on)mogelijkheden bespreken.
Reageer
Naam: Jack , van SenS (datum: 27-01-2020 15:05)
Het verschil lijkt te zijn dat er bij uw woning onderscheid wordt gemaakt in 'wonen' (specifiek bouwvlak) en 'tuin'. In het bestemmingsplan staat dan waarschijnlijk ergens dat op gronden met de bestemming 'tuin' niet gebouwd mag worden. U kunt de tekst van het bestemmingsplan er nog eens op napluizen en nagaan welke uitzondering er mogelijk zijn? Daarna een afspraak maken met de gemeente, uw plannen motiveren en evt. de opties en (on)mogelijkheden bespreken.




![[ S&W Consultancy ]](topics//logo.gif)
![[ Emma Interieuradvies]](topics/index/emma.png)