Zoek binnen het forum
Vraag: ventilatie norm stallingsgarage woningbouw
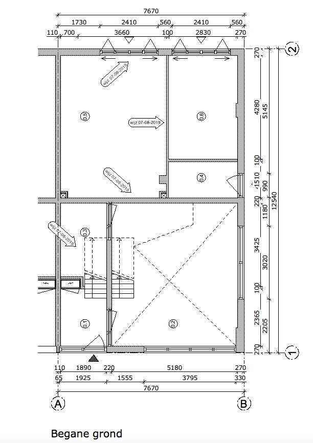
Naam: Camiel, van Studio Du Saar (datum: 13-08-2019 13:18)
Geachte heer/ mevrouw,
ik ben met een piepkleine vergunning bezig en loop tegen een probleem aan. Graag hoor ik van jullie hoe dit op te lossen:
gegevens:
- woning met 2 garages
- renovatie van 2 garage deuren (komt glas in)
- geen ventilatie aanwezig
- aanvraag afgekeurd omdat de ventilatieroosters in het zicht waren
- en omdat de ventilatienorm niet werd behaald a 3dm3/sec/m2 (25m2 * 3 = 75dm3!!).
Vraag:
- hoe wordt dit bij gewone nieuwbouw opgelost, ik zie nergens zulke grote ventilatie bij garages gekoppeld aan woningen?
- is deze norm wel correct? In de parkeer NEN vind ik hem wel terug, met nog veel zwaardere eisen.
Ik hoop duidelijkheid te krijgen, iedereen spreekt me nu tegen.
Zie bijlage voor situatie (ruimte 0.5 en 0.6
Bijlage: plattegrond_3.jpg Reageer
Naam: Camiel, van Studio Du Saar (datum: 13-08-2019 13:18)
Geachte heer/ mevrouw,
ik ben met een piepkleine vergunning bezig en loop tegen een probleem aan. Graag hoor ik van jullie hoe dit op te lossen:
gegevens:
- woning met 2 garages
- renovatie van 2 garage deuren (komt glas in)
- geen ventilatie aanwezig
- aanvraag afgekeurd omdat de ventilatieroosters in het zicht waren
- en omdat de ventilatienorm niet werd behaald a 3dm3/sec/m2 (25m2 * 3 = 75dm3!!).
Vraag:
- hoe wordt dit bij gewone nieuwbouw opgelost, ik zie nergens zulke grote ventilatie bij garages gekoppeld aan woningen?
- is deze norm wel correct? In de parkeer NEN vind ik hem wel terug, met nog veel zwaardere eisen.
Ik hoop duidelijkheid te krijgen, iedereen spreekt me nu tegen.
Zie bijlage voor situatie (ruimte 0.5 en 0.6
Bijlage: plattegrond_3.jpg Reageer
Re: ventilatie norm stallingsgarage woningbouw
Naam: Camiel , van Studio Du Saar (datum: 13-08-2019 13:23)
als aanvulling:
het is een gemeentemonument, dus ventilatieroosters dienen uit het zicht te zijn
de discussie ventilatie - isolatie hoeft niet besproken te worden (ben ik bekend mee)
Ik hoor graag van jullie
Naam: Camiel , van Studio Du Saar (datum: 13-08-2019 13:23)
als aanvulling:
het is een gemeentemonument, dus ventilatieroosters dienen uit het zicht te zijn
de discussie ventilatie - isolatie hoeft niet besproken te worden (ben ik bekend mee)
Ik hoor graag van jullie
Re: ventilatie norm stallingsgarage woningbouw
Naam: Camiel , van Studio Du Saar (datum: 13-08-2019 14:00)
En is het zo dat er 55% gerekend mag worden?
Naam: Camiel , van Studio Du Saar (datum: 13-08-2019 14:00)
En is het zo dat er 55% gerekend mag worden?
Re: ventilatie norm stallingsgarage woningbouw
Naam: pino (datum: 13-08-2019 14:33)
een garagebox voor 1 auto is geen stallingsgarage voor zover ik juist ben geïnformeerd.
stallingsgarages hebben over het algemeen enorme schachten naar het dak dito toevoerroosters nodig
als de toevoer niet via een rooster kan gaat deze ook naar het dak.
Naam: pino (datum: 13-08-2019 14:33)
een garagebox voor 1 auto is geen stallingsgarage voor zover ik juist ben geïnformeerd.
stallingsgarages hebben over het algemeen enorme schachten naar het dak dito toevoerroosters nodig
als de toevoer niet via een rooster kan gaat deze ook naar het dak.
Re: ventilatie norm stallingsgarage woningbouw
Naam: Camiel , van Studio Du Saar (datum: 13-08-2019 14:41)
excuses, misschien heb ik de niet de juiste vakterm gebruikt. ik bedoel een garage aan een huis, waar dus maar 1 auto in kan staan.
Naam: Camiel , van Studio Du Saar (datum: 13-08-2019 14:41)
excuses, misschien heb ik de niet de juiste vakterm gebruikt. ik bedoel een garage aan een huis, waar dus maar 1 auto in kan staan.
Re: ventilatie norm stallingsgarage woningbouw
Naam: Jack , van SenS (datum: 14-08-2019 09:13)
Ventilatie-eis is 3 dm³/s per m² stallingruimte. Als je niet het volledige vloeroppervlak als stallingruimte gebruikt, dan kun je voor 1 auto bijv. 15m² rekenen (reële opstelplaats voor 1 auto) en de rest van de ruimte is bergruimte. Vereiste ventilatie is dan 45 dm³/s.
Met de rekenregel uit de NEN (Q=A*v*1000) bereken je de benodigde netto doorlaat. Als toe- en afvoer in verschillende gevels (of gevel en dak) zitten dan heb je (tbv 45dm³/s) een toevoer én een afvoer met netto doorlaat van 180cm² nodig.
Voor wat betreft keuze roosters zul je bij een monument inderdaad op zoek moeten naar mogelijkheden met 'verdekte roosters' of roosters die qua uitstraling in de tijdsgeest van het monument passen (en je dus ter goedkeuring moet voorleggen).
Overigens betreft het hier verbouw/bestaande bouw, dus aanvullende eisen nieuwbouw (zoals 'niet-afsluitbaar'en 'afvoer rechtstreeks naar buiten') zijn niet van toepassing. Desondanks zou ik toch proberen ze wel te verwezenlijken.
Naam: Jack , van SenS (datum: 14-08-2019 09:13)
Ventilatie-eis is 3 dm³/s per m² stallingruimte. Als je niet het volledige vloeroppervlak als stallingruimte gebruikt, dan kun je voor 1 auto bijv. 15m² rekenen (reële opstelplaats voor 1 auto) en de rest van de ruimte is bergruimte. Vereiste ventilatie is dan 45 dm³/s.
Met de rekenregel uit de NEN (Q=A*v*1000) bereken je de benodigde netto doorlaat. Als toe- en afvoer in verschillende gevels (of gevel en dak) zitten dan heb je (tbv 45dm³/s) een toevoer én een afvoer met netto doorlaat van 180cm² nodig.
Voor wat betreft keuze roosters zul je bij een monument inderdaad op zoek moeten naar mogelijkheden met 'verdekte roosters' of roosters die qua uitstraling in de tijdsgeest van het monument passen (en je dus ter goedkeuring moet voorleggen).
Overigens betreft het hier verbouw/bestaande bouw, dus aanvullende eisen nieuwbouw (zoals 'niet-afsluitbaar'en 'afvoer rechtstreeks naar buiten') zijn niet van toepassing. Desondanks zou ik toch proberen ze wel te verwezenlijken.
Re: ventilatie norm stallingsgarage woningbouw
Naam: Camiel , van Studio Du Saar (datum: 14-08-2019 10:45)
Hallo Jack, wat enorm fijn jouw antwoord. Deze uitzonderingsregel kon ik echt nergens vinden!! Zelfs een docent hts kon dit niet vinden.
Toevoer:
Verdekte roosters boven kozijn
Afvoer:
Zat er van origine niet. Ook maar een buitengebied. Wel kan ventiel geplaatst worden bij de badkamer mv.
Dank!
Naam: Camiel , van Studio Du Saar (datum: 14-08-2019 10:45)
Hallo Jack, wat enorm fijn jouw antwoord. Deze uitzonderingsregel kon ik echt nergens vinden!! Zelfs een docent hts kon dit niet vinden.
Toevoer:
Verdekte roosters boven kozijn
Afvoer:
Zat er van origine niet. Ook maar een buitengebied. Wel kan ventiel geplaatst worden bij de badkamer mv.
Dank!
Re: ventilatie norm stallingsgarage woningbouw
Naam: Jack , van SenS (datum: 14-08-2019 12:32)
Het is geen uitzondering, maar 'n interpretatie.
Onderbouwing is dat je bij een garage waar één auto staat de (minimaal) vereiste ventilatie wilt realiseren. Je kunt er over twisten of je dan bijv. 12, 15 of 18m² als stallingruimte moet aanhouden, maar het blijft 'n stallingsruimte voor één auto.
Vwb de splitsing in stallingruimte en bergruimte; het is in het Bouwbesluit niet noodzakelijk dat de aanduiding van een bepaalde ruimte (verkeersruimte, verblijfsruimte, etc) daadwerkelijk door wand wordt omsloten. Dit kan 'n denkbeeldige indeling / zonering zijn.
Naam: Jack , van SenS (datum: 14-08-2019 12:32)
Het is geen uitzondering, maar 'n interpretatie.
Onderbouwing is dat je bij een garage waar één auto staat de (minimaal) vereiste ventilatie wilt realiseren. Je kunt er over twisten of je dan bijv. 12, 15 of 18m² als stallingruimte moet aanhouden, maar het blijft 'n stallingsruimte voor één auto.
Vwb de splitsing in stallingruimte en bergruimte; het is in het Bouwbesluit niet noodzakelijk dat de aanduiding van een bepaalde ruimte (verkeersruimte, verblijfsruimte, etc) daadwerkelijk door wand wordt omsloten. Dit kan 'n denkbeeldige indeling / zonering zijn.
Re: ventilatie norm stallingsgarage woningbouw
Naam: Camiel , van Studio Du Saar (datum: 14-08-2019 13:16)
Dank je wel,
weinig mensen wisten dit.
Reageer
Naam: Camiel , van Studio Du Saar (datum: 14-08-2019 13:16)
Dank je wel,
weinig mensen wisten dit.




![[ S&W Consultancy ]](topics//logo.gif)
![[ Emma Interieuradvies]](topics/index/emma.png)