Zoek binnen het forum
Vraag: Vluchten bij brand - galerij
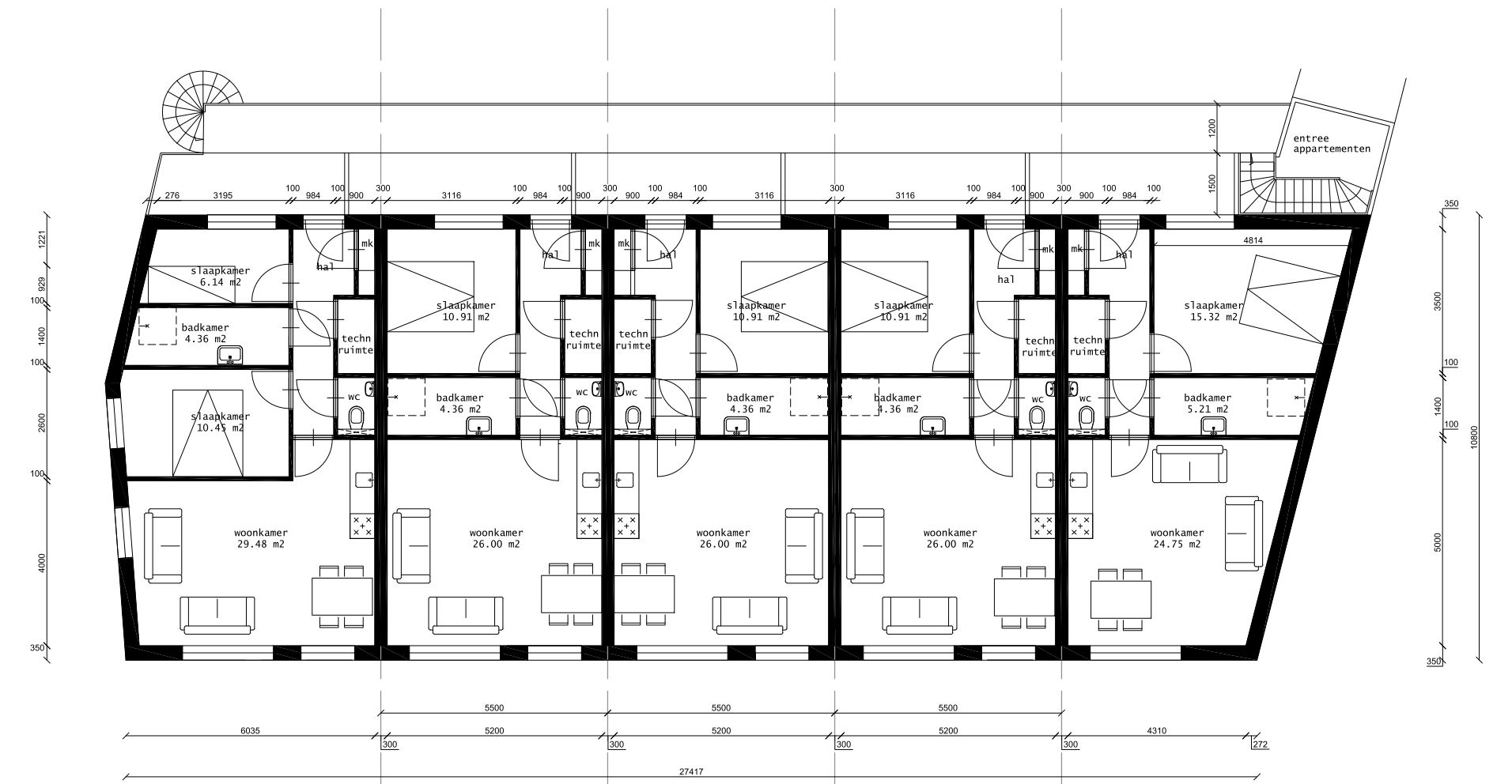
Naam: Gijs (datum: 07-08-2017 09:24)
Betreft de ontwikkeling van een 5 tal appartementen op de verdieping. Voor de entree van de appartementen zal een galerij worden gerealiseerd i.c.m. balkon. Echter de vraag wat de minimale (gecombineerde) afmeting dient te wezen (1,5+1,2?) en of een 2e vluchttrap noodzakelijk is in deze. Aangezien de vluchtroute loopt door een niet overdekte galerij, korter dan 30m.
Bijlage: 1e verdieping.JPG Reageer
Naam: Gijs (datum: 07-08-2017 09:24)
Betreft de ontwikkeling van een 5 tal appartementen op de verdieping. Voor de entree van de appartementen zal een galerij worden gerealiseerd i.c.m. balkon. Echter de vraag wat de minimale (gecombineerde) afmeting dient te wezen (1,5+1,2?) en of een 2e vluchttrap noodzakelijk is in deze. Aangezien de vluchtroute loopt door een niet overdekte galerij, korter dan 30m.
Bijlage: 1e verdieping.JPG Reageer
Re: Vluchten bij brand - galerij
Naam: Jeroen (datum: 07-08-2017 10:40)
Prima zoals het op tekening staat. Dan zou je je er zelf ook veilig voelen.
Naam: Jeroen (datum: 07-08-2017 10:40)
Prima zoals het op tekening staat. Dan zou je je er zelf ook veilig voelen.
Re: Vluchten bij brand - galerij
Naam: Michel , van Ovast (datum: 08-08-2017 09:53)
1,5m + 1,2m = prima.
Wel een uitdaging m.b.t. de daglichtoetreding.
En wellicht o.b.v. art. 432 lid 5 een keermogelijkheid op de galerij maken. (nabij de spiltrap)
Naam: Michel , van Ovast (datum: 08-08-2017 09:53)
1,5m + 1,2m = prima.
Wel een uitdaging m.b.t. de daglichtoetreding.
En wellicht o.b.v. art. 432 lid 5 een keermogelijkheid op de galerij maken. (nabij de spiltrap)
Re: Vluchten bij brand - galerij
Naam: Gijs (datum: 09-08-2017 10:13)
Dank voor de reacties, echter ben ik nog wel benieuwd of een tweede vluchtroute cfm het bouwbesluit noodzakelijk is. Aangezien de vluchtroute korter is dan 30 m vanaf de voordeur van de appartementen. Het gaat immers om een niet besloten galerij. Waarbij men niet "direct" vlucht langs draaibare delen (ramen/deuren) doordat er een buitenruimte á 1,5m volledig voor de appartementen is gesitueerd. Verneem graag hoe jullie hier tegen aan kijken.
Naam: Gijs (datum: 09-08-2017 10:13)
Dank voor de reacties, echter ben ik nog wel benieuwd of een tweede vluchtroute cfm het bouwbesluit noodzakelijk is. Aangezien de vluchtroute korter is dan 30 m vanaf de voordeur van de appartementen. Het gaat immers om een niet besloten galerij. Waarbij men niet "direct" vlucht langs draaibare delen (ramen/deuren) doordat er een buitenruimte á 1,5m volledig voor de appartementen is gesitueerd. Verneem graag hoe jullie hier tegen aan kijken.
Re: Vluchten bij brand - galerij
Naam: Michel , van Ovast (datum: 09-08-2017 13:20)
Ik snap het idee, maar denk niet dat dit gaat werken.
De regel is opgenomen doordat bv voordeuren bij brand open kunnen blijven staan en de brand het vluchten over de vluchtroute kan belemmeren.
1,5m extra (tussen)afstand zal m.i. dan onvoldoende zijn.
Wellicht dat je met een afstand van >5m en wel tot een gelijkwaardige oplossing kunt komen.
Naam: Michel , van Ovast (datum: 09-08-2017 13:20)
Ik snap het idee, maar denk niet dat dit gaat werken.
De regel is opgenomen doordat bv voordeuren bij brand open kunnen blijven staan en de brand het vluchten over de vluchtroute kan belemmeren.
1,5m extra (tussen)afstand zal m.i. dan onvoldoende zijn.
Wellicht dat je met een afstand van >5m en wel tot een gelijkwaardige oplossing kunt komen.
Re: Vluchten bij brand - galerij
Naam: Jeroen (datum: 10-08-2017 10:05)
Vluchtweg sprinkleren kan ook. Gewoon een twee trappen! Eventueel probleem met afsluiten is wel oplosbaar.
Naam: Jeroen (datum: 10-08-2017 10:05)
Vluchtweg sprinkleren kan ook. Gewoon een twee trappen! Eventueel probleem met afsluiten is wel oplosbaar.
Re: Vluchten bij brand - galerij
Naam: Roy (datum: 11-08-2017 14:13)
Hoe een vluchtweg sprinkleren precies gaat helpen weer ik niet, maar twee vluchtwegen zijn wel noodzakelijk. Met één vluchtweg ga je niet uitkomen in deze situatie.
Naam: Roy (datum: 11-08-2017 14:13)
Hoe een vluchtweg sprinkleren precies gaat helpen weer ik niet, maar twee vluchtwegen zijn wel noodzakelijk. Met één vluchtweg ga je niet uitkomen in deze situatie.
Re: Vluchten bij brand - galerij
Naam: Jeroen (datum: 12-08-2017 10:00)
Je moet in principe vrijwel altijd twee richtingen uit kunnen vluchten.
Naam: Jeroen (datum: 12-08-2017 10:00)
Je moet in principe vrijwel altijd twee richtingen uit kunnen vluchten.
Re: Vluchten bij brand - galerij
Naam: Gijs (datum: 12-08-2017 13:41)
Ik ben er al uit. De buitenruimte mag je niet zien als buffer ruimte, wel mag je de trap laten vervallen als je bij de voordeuren gestuurde vrijloopdeurdrangers toepast.
Naam: Gijs (datum: 12-08-2017 13:41)
Ik ben er al uit. De buitenruimte mag je niet zien als buffer ruimte, wel mag je de trap laten vervallen als je bij de voordeuren gestuurde vrijloopdeurdrangers toepast.
Re: Vluchten bij brand - galerij
Naam: Jeroen (datum: 12-08-2017 21:53)
Ben bang van niet!
Naam: Jeroen (datum: 12-08-2017 21:53)
Ben bang van niet!
Re: Vluchten bij brand - galerij
Naam: Michel , van Ovast (datum: 14-08-2017 13:49)
Dan alle draaiende delen zelfsluitend.
Dus ook het draairaam van de slaapkamer.
Naam: Michel , van Ovast (datum: 14-08-2017 13:49)
Dan alle draaiende delen zelfsluitend.
Dus ook het draairaam van de slaapkamer.
Re: Vluchten bij brand - galerij
Naam: Jeroen (datum: 14-08-2017 18:20)
En brandwerend uitvoeren en dan nog is de vraag of er wel mee zal worden ingestemd. N.m.m. NOOIT!
Naam: Jeroen (datum: 14-08-2017 18:20)
En brandwerend uitvoeren en dan nog is de vraag of er wel mee zal worden ingestemd. N.m.m. NOOIT!
Re: Vluchten bij brand - galerij
Naam: Jeroen (datum: 14-08-2017 18:22)
Je moet dat zelf ook niet willen. Wie is er verantwoordelijk als er slachtoffers vallen ten gevolge van brand. Primair de eigenaar. Die wil je toch geen dubieus advies geven. Overigens blijft geen van de betrokkenen bij de bouw buiten schot als er slachtoffers vallen.
Naam: Jeroen (datum: 14-08-2017 18:22)
Je moet dat zelf ook niet willen. Wie is er verantwoordelijk als er slachtoffers vallen ten gevolge van brand. Primair de eigenaar. Die wil je toch geen dubieus advies geven. Overigens blijft geen van de betrokkenen bij de bouw buiten schot als er slachtoffers vallen.
Re: Vluchten bij brand - galerij
Naam: Leon (datum: 14-08-2017 18:59)
Doe iedereen een plezier en maak gewoon die vluchttrap. Er zijn uitzonderingen denkbaar waar slechts een enkele vluchtweg kan volstaan, maar ik vind niet dat je dat hier kan maken. En denk ook eens aan de kosten, ik lees hier iets over vrijloopdrangers maar die kosten alles bij elkaar makkelijk 1000,- excl. btw per stuk. Dan is een eenvoudige stalen trap zo gek nog niet...
Naam: Leon (datum: 14-08-2017 18:59)
Doe iedereen een plezier en maak gewoon die vluchttrap. Er zijn uitzonderingen denkbaar waar slechts een enkele vluchtweg kan volstaan, maar ik vind niet dat je dat hier kan maken. En denk ook eens aan de kosten, ik lees hier iets over vrijloopdrangers maar die kosten alles bij elkaar makkelijk 1000,- excl. btw per stuk. Dan is een eenvoudige stalen trap zo gek nog niet...
Re: Vluchten bij brand - galerij
Naam: Adnan , van Adnan (datum: 06-01-2022 21:45)
Zou je deze situatie niet kunnen zien als een portiekflat? Dan is een vluchtweg voldoende.
Reageer
Naam: Adnan , van Adnan (datum: 06-01-2022 21:45)
Zou je deze situatie niet kunnen zien als een portiekflat? Dan is een vluchtweg voldoende.




![[ S&W Consultancy ]](topics//logo.gif)
![[ Emma Interieuradvies]](topics/index/emma.png)