Zoek binnen het forum
Vraag: Ventilatie vereisten garage
Naam: R. Jonkers (datum: 09-03-2013 15:19)
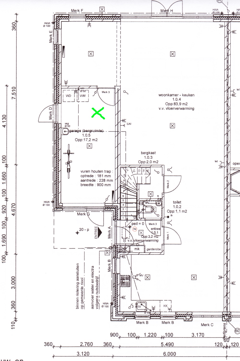
Kan iemand me vertellen welke ventilatie-eisen worden gesteld aan de ruimte op de tekening (groen gemarkeerd)? Meer specifiek: gelden er uberhaupt ventilatie-eisen voor deze ruimte?
Bijlage: garage.jpg Reageer
Naam: R. Jonkers (datum: 09-03-2013 15:19)
Kan iemand me vertellen welke ventilatie-eisen worden gesteld aan de ruimte op de tekening (groen gemarkeerd)? Meer specifiek: gelden er uberhaupt ventilatie-eisen voor deze ruimte?
Bijlage: garage.jpg Reageer
Re: Ventilatie vereisten garage
Naam: Appie (datum: 09-03-2013 16:59)
Indien deze ruimte bij de bouw als functie "garage" meegekregen heeft, moet o.m. worden voldaan aan de ventilatie-eisen zoals gesteld in het Bouwbesluit ten aanzien van "stallingsruimte voor motorvoertuigen".
Zie:
Artikel 3.32 Luchtverversing overige ruimten | Integrale nota van toelichting van Bouwbesluit 2012
lid heeft betrekking op een stallingsruimte voor motorvoertuigen met een gebruiksoppervlakte van ten ... Het zesde lid heeft betrekking op de veiligheid van tunnels of tunnelvormige bouwwerken. Het zesde ...
Naam: Appie (datum: 09-03-2013 16:59)
Indien deze ruimte bij de bouw als functie "garage" meegekregen heeft, moet o.m. worden voldaan aan de ventilatie-eisen zoals gesteld in het Bouwbesluit ten aanzien van "stallingsruimte voor motorvoertuigen".
Zie:
Artikel 3.32 Luchtverversing overige ruimten | Integrale nota van toelichting van Bouwbesluit 2012
lid heeft betrekking op een stallingsruimte voor motorvoertuigen met een gebruiksoppervlakte van ten ... Het zesde lid heeft betrekking op de veiligheid van tunnels of tunnelvormige bouwwerken. Het zesde ...
Re: Ventilatie vereisten garage
Naam: R. Jonkers (datum: 10-03-2013 09:13)
Op de tekening staat "garage (bergruimte)". De ruimte heeft een normale zijdeur en een normale deur aan de voorkant. Ik zou daar dus geen auto kunnen stallen, maar wel een motor. Ik heb het huis onlangs opgeleverd gekregen. Mijn aannemer stelt dat er geen ventilatievoorschriften zijn voor die ruimte.
Naam: R. Jonkers (datum: 10-03-2013 09:13)
Op de tekening staat "garage (bergruimte)". De ruimte heeft een normale zijdeur en een normale deur aan de voorkant. Ik zou daar dus geen auto kunnen stallen, maar wel een motor. Ik heb het huis onlangs opgeleverd gekregen. Mijn aannemer stelt dat er geen ventilatievoorschriften zijn voor die ruimte.
Re: Ventilatie vereisten garage
Naam: Leon (datum: 10-03-2013 20:55)
Tja de tekst 'garage' op tekening biedt denk ik een aardig aanknopingspunt. Is de woning trouwens conform GIW/Woningborg aangeboden?
Naam: Leon (datum: 10-03-2013 20:55)
Tja de tekst 'garage' op tekening biedt denk ik een aardig aanknopingspunt. Is de woning trouwens conform GIW/Woningborg aangeboden?
Re: Ventilatie vereisten garage
Naam: R. Jonkers (datum: 10-03-2013 22:32)
Hallo Leon, nee geen GIW. Het is de vraag wat de toevoeging 'bergruimte' aan 'garage' voor invloed heeft.
Naam: R. Jonkers (datum: 10-03-2013 22:32)
Hallo Leon, nee geen GIW. Het is de vraag wat de toevoeging 'bergruimte' aan 'garage' voor invloed heeft.
Re: Ventilatie vereisten garage
Naam: tim (datum: 11-03-2013 08:24)
de vraag is wel of je er gelukkig van wordt als dit als garage (stallingsruimte voor motorvoertuigen) wordt geventileerd. dit is gelijk aan buitenlucht. Dit heeft dus consequenties voor de thermische schil. Anders zit je straks niet fijn in je woonkamer.
informeer eens bij de gemeente hoe dit is opgenomen in de vergunning.
Naam: tim (datum: 11-03-2013 08:24)
de vraag is wel of je er gelukkig van wordt als dit als garage (stallingsruimte voor motorvoertuigen) wordt geventileerd. dit is gelijk aan buitenlucht. Dit heeft dus consequenties voor de thermische schil. Anders zit je straks niet fijn in je woonkamer.
informeer eens bij de gemeente hoe dit is opgenomen in de vergunning.
Re: Ventilatie vereisten garage
Naam: Leon (datum: 11-03-2013 11:24)
Het maakt niet uit hoe dit vergund is. Wanneer het als garage is verkocht dient het als zodanig uitgevoerd te worden. Ik ken gevallen waar een onbenoemde ruimte als werkkamer is verkocht. Onbenoemde ruimte, dus geen ventilatie. Op basis van de naam 'werkkamer' mag je er echter van uit gaan dat dit een verblijfsruimte is, en dus geventileerd moet worden. De bewoner is uiteindelijk in het gelijk gesteld en heeft dus z'n ventilatievoorziening gekregen. Je kunt je inderdaad afvragen of je hier wilt ventileren conform een garage, anderzijds lijkt het me wel fijn om toch iets op te nemen met het oog op de wasmachine. Zelf hanteer ik altijd de norm van het GIW, dus een afvoercapaciteit van 14 dm3/s voor een opstelplaats van de wasmachine. Wellicht kun je het op die manier op een akkoordje gooien met de aannemer?
Naam: Leon (datum: 11-03-2013 11:24)
Het maakt niet uit hoe dit vergund is. Wanneer het als garage is verkocht dient het als zodanig uitgevoerd te worden. Ik ken gevallen waar een onbenoemde ruimte als werkkamer is verkocht. Onbenoemde ruimte, dus geen ventilatie. Op basis van de naam 'werkkamer' mag je er echter van uit gaan dat dit een verblijfsruimte is, en dus geventileerd moet worden. De bewoner is uiteindelijk in het gelijk gesteld en heeft dus z'n ventilatievoorziening gekregen. Je kunt je inderdaad afvragen of je hier wilt ventileren conform een garage, anderzijds lijkt het me wel fijn om toch iets op te nemen met het oog op de wasmachine. Zelf hanteer ik altijd de norm van het GIW, dus een afvoercapaciteit van 14 dm3/s voor een opstelplaats van de wasmachine. Wellicht kun je het op die manier op een akkoordje gooien met de aannemer?
Re: Ventilatie vereisten garage
Naam: B. van den Broek (datum: 11-03-2013 11:29)
De tekst zegt niet zoveel.
Het gaat om een opstellingsplaats motorvoertuig.
Kan er een auto in? Zoja dan ventilatie eisen.
Zo niet dan zijn er geen eisen aan.
Bouwbesluit stelt geen eisen aan het woord garage maar aan de opstellingsplaats motorvoertuig.
Naam: B. van den Broek (datum: 11-03-2013 11:29)
De tekst zegt niet zoveel.
Het gaat om een opstellingsplaats motorvoertuig.
Kan er een auto in? Zoja dan ventilatie eisen.
Zo niet dan zijn er geen eisen aan.
Bouwbesluit stelt geen eisen aan het woord garage maar aan de opstellingsplaats motorvoertuig.
Re: Ventilatie vereisten garage
Naam: B. van den Broek (datum: 11-03-2013 11:31)
overigens zie ik een wm opstelling.
Dat houdt in dat er wel degelijk een afzuiging moet zitten.
Echter kun je dan geen ventilatie eisen conform opstelplaats motorvoertuig. Dit geeft een dusdanige ventilatie dat er in de ruimte een buitenklimaat heerst en er dus geen vorstvrije garantie kan zijn.
Dus bedenk goed wat je aanhaalt vanwege de aanwezige wasmachine.
Naam: B. van den Broek (datum: 11-03-2013 11:31)
overigens zie ik een wm opstelling.
Dat houdt in dat er wel degelijk een afzuiging moet zitten.
Echter kun je dan geen ventilatie eisen conform opstelplaats motorvoertuig. Dit geeft een dusdanige ventilatie dat er in de ruimte een buitenklimaat heerst en er dus geen vorstvrije garantie kan zijn.
Dus bedenk goed wat je aanhaalt vanwege de aanwezige wasmachine.
Re: Ventilatie vereisten garage
Naam: Leon (datum: 11-03-2013 11:39)
@B. van den Broek
Je bedoelt: kan er een motorvoertuig in? Hoewel we altijd van auto's uitgaan in deze vind ik de opmerking van de vraagsteller ten aanzien van de motorfiets een hele aardige...
Naam: Leon (datum: 11-03-2013 11:39)
@B. van den Broek
Je bedoelt: kan er een motorvoertuig in? Hoewel we altijd van auto's uitgaan in deze vind ik de opmerking van de vraagsteller ten aanzien van de motorfiets een hele aardige...
Re: Ventilatie vereisten garage
Naam: Leon (datum: 11-03-2013 11:39)
En aanvullend: ventilatie van een wasmachine-opstelling is vanuit de regelgeving niet verplicht.
Naam: Leon (datum: 11-03-2013 11:39)
En aanvullend: ventilatie van een wasmachine-opstelling is vanuit de regelgeving niet verplicht.
Re: Ventilatie vereisten garage
Naam: B. van den Broek (datum: 11-03-2013 15:03)
motorfiets is inderdaad een goede.
Maar dan nog, zou je dat wel willen? Als je gaat ventileren conform die eisen dan heb je eigenlijk een buitenklimaat in de garage en heb je dus een risico op vorst bij je wasmachine.
ik vermoed dat e.e.a. ook voortkomt uit meerwerk en dat de bouwer vanwege de wasmachine opstelplaats de ventilatie niet aan wil brengen.
Naam: B. van den Broek (datum: 11-03-2013 15:03)
motorfiets is inderdaad een goede.
Maar dan nog, zou je dat wel willen? Als je gaat ventileren conform die eisen dan heb je eigenlijk een buitenklimaat in de garage en heb je dus een risico op vorst bij je wasmachine.
ik vermoed dat e.e.a. ook voortkomt uit meerwerk en dat de bouwer vanwege de wasmachine opstelplaats de ventilatie niet aan wil brengen.
Re: Ventilatie vereisten garage
Naam: Appie (datum: 11-03-2013 16:24)
De exacte tekst van art. 1 lid c van de Wegenverkeerswet 1994 luidt:
alle voertuigen, bestemd om anders dan langs spoorstaven te worden voortbewogen uitsluitend of mede door een mechanische kracht, op of aan het voertuig zelf aanwezig dan wel door elektrische tractie met stroomtoevoer van elders, met uitzondering van fietsen met trapondersteuning.
Met andere woorden: een motorfiets is een motorvoertuig in de zin van de Wegenverkeerswet.
Naam: Appie (datum: 11-03-2013 16:24)
De exacte tekst van art. 1 lid c van de Wegenverkeerswet 1994 luidt:
alle voertuigen, bestemd om anders dan langs spoorstaven te worden voortbewogen uitsluitend of mede door een mechanische kracht, op of aan het voertuig zelf aanwezig dan wel door elektrische tractie met stroomtoevoer van elders, met uitzondering van fietsen met trapondersteuning.
Met andere woorden: een motorfiets is een motorvoertuig in de zin van de Wegenverkeerswet.
Re: Ventilatie vereisten garage
Naam: R. Jonkers (datum: 11-03-2013 20:30)
Dank allemaal voor jullie reacties. Ik zal er nog eens goed naar kijken, welke richting dit nou op moet gaan. Ook belangrijk dat het niet te koud wordt daar, maar wel ventileert (voor de wasmachine en droger). Dank zover!
Naam: R. Jonkers (datum: 11-03-2013 20:30)
Dank allemaal voor jullie reacties. Ik zal er nog eens goed naar kijken, welke richting dit nou op moet gaan. Ook belangrijk dat het niet te koud wordt daar, maar wel ventileert (voor de wasmachine en droger). Dank zover!
Re: Ventilatie vereisten garage
Naam: Jack , van SA (datum: 13-03-2013 17:38)
De tekst 'garage' schept een hoop verwarring in deze plattegrond.
De ruimte die waarschijnlijk voorheen als garage was voorzien lijkt nu toch anders te worden gebruikt. De ruimte lijkt binnen de thermische schil van de woning te vallen want buitenwanden zijn geisoleerd en binnenwanden naar de woning niet. Een ventilatie capaciteit zoals vereist voor een garage zou dan niet logisch zijn, want dat betreft 3dm?/s per m? vloeroppervlak van de stallingsruimte ?n het moeten niet-afsluitbare openingen zijn. Dat in combinatie met het isoleren en verwarmen van die ruimte is niet logisch.
De ruimte kan/mag beschouwd worden als 'overige ruimte' en daarvoor geldt geen ventilatieeis volgens Bouwbesluit. GIW adviseert 14dm?/s. Wellicht volstaat een buisventilator (afzuiging)in het dak (boven wasmach.) die lucht via aangrenzende ruimte aanzuigt (overstroomcapaciteit). Mocht dat niet volstaan kun je altijd nog een rooster in een van de buitenkozijnen maken.
Naam: Jack , van SA (datum: 13-03-2013 17:38)
De tekst 'garage' schept een hoop verwarring in deze plattegrond.
De ruimte die waarschijnlijk voorheen als garage was voorzien lijkt nu toch anders te worden gebruikt. De ruimte lijkt binnen de thermische schil van de woning te vallen want buitenwanden zijn geisoleerd en binnenwanden naar de woning niet. Een ventilatie capaciteit zoals vereist voor een garage zou dan niet logisch zijn, want dat betreft 3dm?/s per m? vloeroppervlak van de stallingsruimte ?n het moeten niet-afsluitbare openingen zijn. Dat in combinatie met het isoleren en verwarmen van die ruimte is niet logisch.
De ruimte kan/mag beschouwd worden als 'overige ruimte' en daarvoor geldt geen ventilatieeis volgens Bouwbesluit. GIW adviseert 14dm?/s. Wellicht volstaat een buisventilator (afzuiging)in het dak (boven wasmach.) die lucht via aangrenzende ruimte aanzuigt (overstroomcapaciteit). Mocht dat niet volstaan kun je altijd nog een rooster in een van de buitenkozijnen maken.
Re: Ventilatie vereisten garage
Naam: henk odijk , van bureau 1232 (datum: 14-03-2013 21:10)
Er spelen 2 zaken:
1. Bouwvergunning: De status van die ruimte moet zijn aangegeven op de bouwaanvraag. Als het goed is zijn daar ook de voorzieningen op gedimensioneerd. Als het op de bouwaanvraag een "overige gebruiksfunctie voor het stallen van motorvoeruigen" is, dan had deze geventileerd moeten zijn. (Overigens is er dan nog wel meer mee mis, maar dat terzijde).
NB Met de bouwvergunning hebt u als koper niks te maken, dat is iets tussen de aanvrager en de gemeente.
2. Uw koopovereenkomst: U krijgt wat u hebt gekocht. Op deze tekening is geen ventilatie aangegeven, als dat contractstuk is zult u dan ook geen ventilatie krijgen. Uw enige kans is als u (op grond van wervende teksten van de verkoper o.i.d.) aannemelijk kunt maken dat de verwachting is gewekt dat de ruimte wel geventileerd zou worden. De benaming berging of opstelplaats wasmachine geven daar geen aanleiding toe, die hoeven ook van Bouwbesluit niet geventileerd te worden.
Naam: henk odijk , van bureau 1232 (datum: 14-03-2013 21:10)
Er spelen 2 zaken:
1. Bouwvergunning: De status van die ruimte moet zijn aangegeven op de bouwaanvraag. Als het goed is zijn daar ook de voorzieningen op gedimensioneerd. Als het op de bouwaanvraag een "overige gebruiksfunctie voor het stallen van motorvoeruigen" is, dan had deze geventileerd moeten zijn. (Overigens is er dan nog wel meer mee mis, maar dat terzijde).
NB Met de bouwvergunning hebt u als koper niks te maken, dat is iets tussen de aanvrager en de gemeente.
2. Uw koopovereenkomst: U krijgt wat u hebt gekocht. Op deze tekening is geen ventilatie aangegeven, als dat contractstuk is zult u dan ook geen ventilatie krijgen. Uw enige kans is als u (op grond van wervende teksten van de verkoper o.i.d.) aannemelijk kunt maken dat de verwachting is gewekt dat de ruimte wel geventileerd zou worden. De benaming berging of opstelplaats wasmachine geven daar geen aanleiding toe, die hoeven ook van Bouwbesluit niet geventileerd te worden.
Re: Ventilatie vereisten garage
Naam: Leon (datum: 14-03-2013 21:42)
Dat klopt Henk, maar in dat soort gevallen zou de kreet 'garage' wel eens doorslaggevend kunnen zijn. Helemaal als er ergens in de verkoopstukken wordt gemeld dat de boel aan het Bouwbesluit voldoet.
Reageer
Naam: Leon (datum: 14-03-2013 21:42)
Dat klopt Henk, maar in dat soort gevallen zou de kreet 'garage' wel eens doorslaggevend kunnen zijn. Helemaal als er ergens in de verkoopstukken wordt gemeld dat de boel aan het Bouwbesluit voldoet.




![[ S&W Consultancy ]](topics//logo.gif)
![[ Emma Interieuradvies]](topics/index/emma.png)