Zoek binnen het forum
Vraag: verspringende achtergevel en 2,5 m zone?
Naam: Otto (datum: 14-12-2010 20:55)
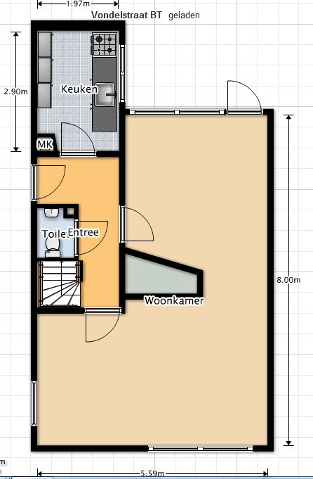
Wij willen een aanbouw realiseren aan de achtergevel. Probleem is dat deze achtergevel verspringt. De keuken met daarboven de badkamer steekt 2 meter uit t.o.v. de rest van de achtergevel. Dit is de oorspronkelijke situatie, dus niet tussentijds zo uitgebouwd.
Vanaf waar begint nu de 2,5 meter vergunningsvrije zone?
Bijlage: Plattegrond_bg.JPG Reageer
Naam: Otto (datum: 14-12-2010 20:55)
Wij willen een aanbouw realiseren aan de achtergevel. Probleem is dat deze achtergevel verspringt. De keuken met daarboven de badkamer steekt 2 meter uit t.o.v. de rest van de achtergevel. Dit is de oorspronkelijke situatie, dus niet tussentijds zo uitgebouwd.
Vanaf waar begint nu de 2,5 meter vergunningsvrije zone?
Bijlage: Plattegrond_bg.JPG Reageer
Re: verspringende achtergevel en 2,5 m zone
Naam: Jack , van SA (datum: 15-12-2010 08:24)
Overleg even met de desbetreffende gemeente.
Wat is trouwens het probleem? Stel dat het niet vergunningsvrij is; dan vraag je vergunning aan. Regelgeving wijzigt niet.
Naam: Jack , van SA (datum: 15-12-2010 08:24)
Overleg even met de desbetreffende gemeente.
Wat is trouwens het probleem? Stel dat het niet vergunningsvrij is; dan vraag je vergunning aan. Regelgeving wijzigt niet.
Re: verspringende achtergevel en 2,5 m zone
Naam: KlaasV (datum: 15-12-2010 09:53)
Als het de oorspronkelijke acghtergevel is loopt de 2.5 m zone mee met de gevel. Dus je krijgt eenzelfde sprong in je vergunningvrije aanbouw als nu in de woning zit.
Je kunt inderdaad ook nog gewoon een vergunning aanvrgaen om zo de sprong kwijt te raken.
Reageer
Naam: KlaasV (datum: 15-12-2010 09:53)
Als het de oorspronkelijke acghtergevel is loopt de 2.5 m zone mee met de gevel. Dus je krijgt eenzelfde sprong in je vergunningvrije aanbouw als nu in de woning zit.
Je kunt inderdaad ook nog gewoon een vergunning aanvrgaen om zo de sprong kwijt te raken.




![[ S&W Consultancy ]](topics//logo.gif)
![[ Emma Interieuradvies]](topics/index/emma.png)